Active Projects Report - October 6, 2025

Los Rios CCD | Planning and Construction

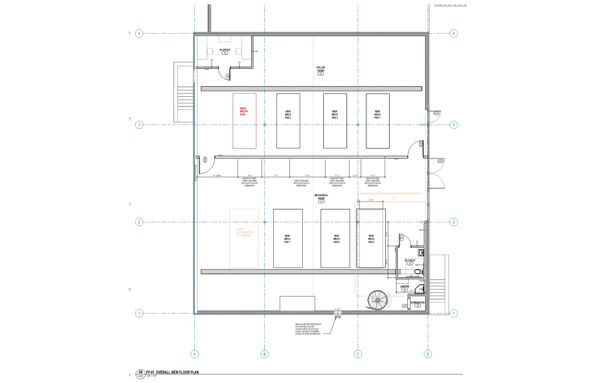
ARC 2024 PE HVAC Upgrade
PM: Mirmiran Architect: Moniz Architecture Contractor:
Scope: Provide upgraded HVAC for mens locker room.
Weekly Update: Construction started 1) Abatement in progress. 2) EMCOR started construction on 9/15.
Tenative Schedule Start Months Finish % Complete
Prelim Plans Dec 2024 1 Jan 2025 100%
Approvals Jan 2025 1 Feb 2025 100%
Working Drawings Feb 2025 4 Jun 2025 100%
Approvals Jun 2025 2 Aug 2025 100%
Bid and Award Aug 2025 1 Sep 2025 100%
Construction Sep 2025 1 Oct 2025 15%
Campus Move-in Oct 2025 0 Oct 2025 0%
ARC 2025 BSO Office Remodel
PM: Blake Architect: Moniz Architecture Contractor:
Scope: Campus requested and funded remodel of area within the Business Services Office including ADA upgrades.
Weekly Update: 2025.09.30- 1) Conducted Preconstruction meeting on 8/16/25. 2) Project Schedule end date of 12/12/25. 3) Pro Builders Mobilized on 9/29/25.
Tenative Schedule Start Months Finish % Complete
Prelim Plans Mar 2025 1 Apr 2025
Approvals Apr 2025 1 May 2025
Working Drawings May 2025 1 Jun 2025
Approvals Jun 2025 1 Jul 2025
Bid and Award Jul 2025 1 Aug 2025
Construction Aug 2025 3 Nov 2025
Campus Move-in Nov 2025 1 Dec 2025
ARC 2025 Child Development Center Shade Structure
PM: Uhlmeyer Architect: Architechnica Contractor:
Scope: Project to replace old failing shade structures at CDC.
Weekly Update: Onsite meeting to discuss options 10/2 DSA Submittal 8/28 - OTC 9/5 Proximity issues with Priority Shade &%% plans received for review/approval 7/30/2025 Concept Drawing Received 5/27/2025 & shared with Campus 6/4 Design "Kick Off" meeting held on 5/13/2025
Tenative Schedule Start Months Finish % Complete
Prelim Plans May 2025 2 Jul 2025 100%
Approvals Jul 2025 1 Aug 2025 100%
Working Drawings Aug 2025 4 Dec 2025 75%
Approvals Dec 2025 2 Feb 2026
Bid and Award Feb 2026 3 May 2026
Construction May 2026 4 Sep 2026
Campus Move-in Sep 2026 1 Oct 2026
ARC 2025 Natomas Key and Card Access Upgrade
PM: Blake Architect: Contractor:
Scope:
Weekly Update: 2025.09.30- 1) Due to a lot of the work was already completed inhouse prior, FM Electrical/Structural teams will be performing the labor and providing an estimate for materials. 2) Provided FM teams with scope of work documents for takeoffs. 3) Electrical Teams materials and labor work is complete less the final connections to the Key Box. 4) Received Key Box Quote from Structural, put in for a P.O. with Purchasing on 5/16/25. 5) Waiting for Structural to provide Door Hardware materials quote, sent email to Gary on 9/25/25 regarding status, waiting for response.
Tenative Schedule Start Months Finish % Complete
Prelim Plans Mar 2025 3 Jun 2025
Approvals Jun 2025 1 Jul 2025
Working Drawings Jul 2025 1 Aug 2025
Approvals Aug 2025 1 Sep 2025
Bid and Award Sep 2025 1 Oct 2025
Construction Oct 2025 1 Nov 2025
Campus Move-in Nov 2025 1 Dec 2025
ARC Astroturf Synthetic Softball Field
PM: Uhlmeyer Architect: LPA Contractor: PROGRASS WEST INC
Scope: In an effort to address sustainability goals and improve facilities for Los Rios students this project will replace the exist ing natural grass softball fields at American River College, Sacramento City College and Folsom Lake College with a new synthetic fields. The planned improvements include Removal of the existing natural grass field, New synthetic turf field with associated subdrainage, ADA path of travel improvements as required for the field and Minor ADA improvements to the existing restroom facilities.
Weekly Update: Field complete ---- ADA POT expected completion 1/17/2025 --- ADA Restroom modifications expected completion 1/14
Tenative Schedule Start Months Finish % Complete
Prelim Plans May 2022 4 Sep 2022 100
Approvals Sep 2022 1 Oct 2022 100
Working Drawings Oct 2022 2 Dec 2022 100
Approvals Dec 2022 2 Feb 2023 100
Bid and Award Feb 2023 3 May 2023 100
Construction May 2023 5 Oct 2023 100%
Campus Move-in Oct 2023 0 Oct 2023 100%
ARC Davies Hall Modernization
PM: Blake Architect: Lionakis Contractor:
Scope: Demo and replace Davies Hall
Weekly Update: 2025.09.30- 1) Conducted Kickoff Meeting on Friday 9/19/25. 2) Working with site to have in person meetings, site is proposing Separate Group Zoom Meetings broken up into three User Groups, English, Language & Communication, and People, Culture, & Society by weekly, and one combined in person monthly. 3) Working with site and LIONAKIS on combined classroom mockup to show staff. 4) Administrative Programing stage.
Tenative Schedule Start Months Finish % Complete
Prelim Plans Sep 2025 6 Mar 2026
Approvals Mar 2026 1 Apr 2026
Working Drawings Apr 2026 6 Oct 2026
Approvals Oct 2026 8 Jun 2027
Bid and Award Jun 2027 3 Sep 2027
Construction Sep 2027 18 Mar 2029
Campus Move-in Mar 2029 2 May 2029
ARC NEC Phase II & III
PM: Besne Architect: LPA Inc Contractor: JOHN F OTTO, INC
Scope: This Project builds a new 31,077 assignable square feet (asf) (49,800 gross square feet) instructional facility adjacent to the existing American River College Natomas Center building. The new building will provide space for instruction in general education, biology and chemistry and provides ADA access compliance and adequate HVAC, power, technology and lighting systems to support these instructional programs. This includes 5,610 asf of lecture space, 16,441 asf of lab space and 9,026 asf of office/admin and miscellaneous support space.
Weekly Update: Current activities: Exterior envelope is nearly complete. Brick and stucco is complete. Glazing is ongoing and approximately 98% complete. Interior: MEP trim and lighting installation is underway. Casework (lab and Architectural) installation is underway. Kone has completed elevator installation and will return for start-up and inspections. Team is anticipating energizing building sub-panels mid to late September. The Contractor will need to complete rooftop equipment work (catwalk, LV controls wiring, electrical) to allow start-up of building system equipment in October. Furniture installation is anticipated in November.
Tenative Schedule Start Months Finish % Complete
Prelim Plans Nov 2019 9 Aug 2020 100%
Approvals Aug 2020 4 Dec 2020 100%
Working Drawings Dec 2020 6 Jun 2021 100%
Approvals Jun 2021 14 Aug 2022 100%
Bid and Award Aug 2022 9 May 2023 100%
Construction May 2023 31 Dec 2025 85%
Campus Move-in Dec 2025 1 Jan 2026 0%
Bioswale excavation and flatwork at Courtyard
Courtyard
ARC NEC TAP II & III Offsite Parking
PM: Uhlmeyer Architect: Kier+Wright (civil) Contractor: WESTERN ENGINEERING CONTRACTORS, INC
Scope: Construction of off site parking to support NEC phase II and III. Location of parking lot will be across Via Ingoglia, a short walk to the Natomas Center, and provide approximately 250 stalls. The parking lot is on a shared property with a soon to be constructed softball field for Inderkum HS.
Weekly Update: This project is 100% complete, Jen Mellor (NUSD) has been allowed to open and close the parking lot per HS Softball needs. .................................................................................................................................................................................................. precision striping PO issued - work to be completed week of 5/1 Zellars Concrete on site to complete City Side Walk Restoration work for City Final week of 5/1
Tenative Schedule Start Months Finish % Complete
Prelim Plans Nov 2019 3 Feb 2020 100%
Approvals Feb 2020 9 Nov 2020 100%
Working Drawings Nov 2020 6 May 2021 100%
Approvals May 2021 6 Nov 2021 100%
Bid and Award Nov 2021 4 Mar 2022 100%
Construction Mar 2022 8 Nov 2022 100%
Campus Move-in Nov 2022 1 Dec 2022 100%
Paving and Landscaping completed looking towards Library
Aerial View of Completed Lot
ARC Portable Village 1 & 2 Refresh
PM: Cox Architect: Contractor:
Scope: Costs related to the closure of Davies Hall and Refresh of existing Portable Villages 1 & 2 to support instruction due to closure.
Weekly Update: Fence--Cancelled. Rocket Luxury Toilet Trailers set at PV1 and ready for use. PV1 Restroom Project in at DSA. Architect resubmitted plans to DSA 09/11 and continues to address latest comments. PV3 has been cancelled and replaced with upgrades to PV1, PV2. Scope sent to HGA for new design proposal--received.. Walked site 09/15 to review scope. Issued estimate at approx. $1.3M. Issued PO request for reduced fee and directed HGA to start design process.
Tenative Schedule Start Months Finish % Complete
Prelim Plans Nov 2023 25 Dec 2025 30
Approvals Dec 2025 1 Jan 2026
Working Drawings Jan 2026 3 Apr 2026
Approvals Apr 2026 4 Aug 2026
Bid and Award Aug 2026 4 Dec 2026
Construction Dec 2026 6 Jun 2027
Campus Move-in Jun 2027 1 Jul 2027
ARC Tech Ed Modernization
PM: ICS Architect: DLR Group Contractor: JOHN F. OTTO INC DBA OTTO CONSTRUCTION
Scope: This Project builds a new 60,552 assignable square feet (asf) (91,000 gross square feet) instructional facility to replace the existing Tech Ed building on the American River College campus. The new building will be used for instruction in Automotive Technology, Welding, Funeral Services and Electronics and provides ADA access compliance and adequate HVAC, power, technology and lighting systems to support these instructional programs. This includes 5,782 asf of lecture space, 50,081 asf of lab space and 4,689 asf of office/admin support. The Project will incorporate existing Tech Ed spaces and surrounding portable buildings, as well as the phased demolition of the existing Tech Ed facility and adjacent portable buildings.
Weekly Update: The project is approximately 99.9% complete. Phase 2 parking paving is complete and landscape punch list issued. Classes have started and building is mostly occupied. Commissioning and minor punch list work continues. Developed CO #12 and sent out for signature.
Tenative Schedule Start Months Finish % Complete
Prelim Plans Dec 2019 8 Aug 2020 100%
Approvals Aug 2020 1 Sep 2020 100%
Working Drawings Sep 2020 8 May 2021 100%
Approvals May 2021 12 May 2022 100%
Bid and Award May 2022 4 Sep 2022 100%
Construction Sep 2022 34 Jul 2025 99%
Campus Move-in Jul 2025 2 Sep 2025 97%
Soldering Lab
View of East Facade
ARC Tech Ed Temp Housing
PM: Meyer Architect: WESTON & ASSOC MECHANICAL ENGINEERS Contractor: DIVISION 5-15 INC
Scope: Modifications to temp housing to accommodate Tech Ed construction phase.
Weekly Update: Contractor has completed installation and balancing of vent system and electrical work required to house program temporarily while the ARC Tech Ed project is under construction. Project is complete.
Tenative Schedule Start Months Finish % Complete
Prelim Plans Aug 2021 1 Sep 2021 100
Approvals Sep 2021 1 Oct 2021 100
Working Drawings Oct 2021 1 Nov 2021 100
Approvals Nov 2021 1 Dec 2021 100
Bid and Award Dec 2021 2 Feb 2022 100
Construction Feb 2022 1 Mar 2022 100
Campus Move-in Mar 2022 0 Mar 2022 100
Project location
Classroom venting for student projects
ARC Veterans Resource Center
PM: Cox Architect: AE3 Contractor:
Scope: This is a Campus funded project to renovate the Veterans Resource Center in the Student Services building. Project demo's existing space, renovates interior to make it more functional and inviting for users and updates HVAC, Electrical, plumbing and all finishes. Also creates new patio area for the program.
Weekly Update: Plans approved by DSA. Third (final) in-house plan review complete and comments sent to architect on April 11-- Working to coordinate with campus and FM HVAC team for controls work preceding this remodel--this seems to be resolved. Awaiting DSA approved addenda so project can bid. Final estimate came in at just under $1.4M. DSA returned package for comments 08-08-design team indicated they resubmitted but DSA tracker in disagreement. Reached out again 10-02 to AE3 but no firm answer re: anticipated approval date and am pressing architect weekly.
Tenative Schedule Start Months Finish % Complete
Prelim Plans Dec 2022 2 Feb 2023 100
Approvals Feb 2023 1 Mar 2023 100
Working Drawings Mar 2023 9 Dec 2023 100
Approvals Dec 2023 21 Sep 2025 100
Bid and Award Sep 2025 4 Jan 2026
Construction Jan 2026 9 Oct 2026
Campus Move-in Oct 2026 1 Nov 2026
CRC 2025 Central Plant Upgrade
PM: Uhlmeyer Architect: Interface Engineering Contractor:
Scope: Upgrade of central plant heating and chilling equipment to meet current and future capacity needs.
Weekly Update: Project Feasibility Study in progress and is expected in approximately 4 weeks. Once study is complete District will evaluate options and select appropriate project scope with which to proceed.
Tenative Schedule Start Months Finish % Complete
Prelim Plans Mar 2025 4 Jul 2025 5
Approvals Jul 2025 2 Sep 2025
Working Drawings Sep 2025 6 Mar 2026
Approvals Mar 2026 6 Sep 2026
Bid and Award Sep 2026 3 Dec 2026
Construction Dec 2026 14 Feb 2028
Campus Move-in Feb 2028 1 Mar 2028
CRC 2025 Stadium Synthetic Turf Replacement
PM: Uhlmeyer Architect: Verde Designs Contractor:
Scope: Project to replace synthetic turf in football stadium which has reached its end of life.
Weekly Update: WCE to be on site for topo survey - date TBD
Tenative Schedule Start Months Finish % Complete
Prelim Plans Mar 2025 4 Jul 2025 100%
Approvals Jul 2025 1 Aug 2025 100%
Working Drawings Aug 2025 4 Dec 2025 95%
Approvals Dec 2025 2 Feb 2026
Bid and Award Feb 2026 3 May 2026
Construction May 2026 3 Aug 2026
Campus Move-in Aug 2026 1 Sep 2026
CRC Affordable Student Housing
PM: Mirmiran Architect: TCA Architects Contractor:
Scope: Affordable student housing project to be build on campus as CRC. Funds provided by State - $44,100,000 total for hard and soft costs.
Weekly Update: 2025.09.09- 1) Waiting on property escrow.
Tenative Schedule Start Months Finish % Complete
Prelim Plans Nov 2024 7 Jun 2025 10%
Approvals Jun 2025 0 Jun 2025 00%
Working Drawings Jun 2025 9 Mar 2026 00%
Approvals Mar 2026 9 Dec 2026 00%
Bid and Award Dec 2026 4 Apr 2027 00%
Construction Apr 2027 19 Nov 2028 00%
Campus Move-in Nov 2028 2 Jan 2029 00%
CRC CRC Electrical Switch Gear Replacement (SMSR)
PM: Cox Architect: The Engineering Enterprise Contractor: BOCKMON & WOODY ELECTRIC CO
Scope:
Weekly Update: Gear has arrived at contractor's yard. Final vault has been set and approved by SMUD. Reviewed needed landscape repairs and contractor plans to address after switchgear set. Working with contractor on generator scope and schedule for install. Waiting on final schedule for Oct 25-26 shut down-verbally on track.
Tenative Schedule Start Months Finish % Complete
Prelim Plans Feb 2022 3 May 2022 100
Approvals May 2022 0 May 2022 100
Working Drawings May 2022 13 Jun 2023 100
Approvals Jun 2023 2 Aug 2023 100
Bid and Award Aug 2023 5 Jan 2024 100
Construction Jan 2024 20 Sep 2025 52
Campus Move-in Sep 2025 0 Sep 2025
CRC Culinary Arts Remodel
PM: Cox Architect: tBP Contractor: F&H CONSTRUCTION
Scope: Reconfiguration of kitchen to better accommodate both Food Service vendor and Culinary program
Weekly Update: Project is finally complete with Vendor occupying phase 1 and campus using phase 2 and 3. tracking minor HVAC issues.
Tenative Schedule Start Months Finish % Complete
Prelim Plans Aug 2021 5 Jan 2022 100%
Approvals Jan 2022 1 Feb 2022 100%
Working Drawings Feb 2022 6 Aug 2022 100%
Approvals Aug 2022 4 Dec 2022 100%
Bid and Award Dec 2022 5 May 2023 100%
Construction May 2023 19 Dec 2024 100%
Campus Move-in Dec 2024 0 Dec 2024 100%
Phase 1 and 2 kitchen
Phase 3 kitchen
CRC EGC Phase II
PM: Cox Architect: DLR Group Contractor: JOHN F. OTTO INC DBA OTTO CONSTRUCTION
Scope: The Long Range Capital Needs Plan and local bond measure M include funds to construct Phase 2 of the Elk Grove Center. This Project builds a new 15,200 assignable square feet (asf) (24,888 gross square feet) instructional facility adjacent to the existing Elk Grove Center Phase 1 building. The new building will provide space for instruction in general education, biology and chemistry and provides ADA access compliance and adequate HVAC, power, technology and lighting systems to support these instructional programs. This includes 3,000 asf of lecture space, 7,200 asf of lab space and 2,400 asf of office/admin and 2,600 of miscellaneous student and faculty support space.
Weekly Update: The project is complete but commissioning of HVAC systems continues and expect to complete mid-august. Contractor completed off-site repairs and awaiting certification from City--County sent start of warranty letter.. Multi Stack has completed repairs of AWHP but minor issues remain and are being addressed. Restoring original SOO initiated but waiting on hardware and software update before reloading. Meeting bi-weekly again with with all parties to discuss resolution.
Tenative Schedule Start Months Finish % Complete
Prelim Plans Sep 2019 8 May 2020 100%
Approvals May 2020 2 Jul 2020 100%
Working Drawings Jul 2020 3 Oct 2020 100%
Approvals Oct 2020 9 Jul 2021 100%
Bid and Award Jul 2021 4 Nov 2021 100%
Construction Nov 2021 26 Jan 2024 100%
Campus Move-in Jan 2024 3 Apr 2024 100%
Lobby
Exterior
CRC Hawk Cares Health and Wellness Mod
PM: Blake Architect: Lionakis Contractor:
Scope: Remodel CRC Bookstore into a basic needs/wellness center and move Hawk Cares (Basic Needs) services and Health and Wellness services into the space.
Weekly Update: 2025.09.30- 1) Requisition has been generated for P.O. for LIONAKIS Scoping Services on 9/15/25. 2) Administrative Programming Stage.
Tenative Schedule Start Months Finish % Complete
Prelim Plans Sep 2025 6 Mar 2026
Approvals Mar 2026 4 Jul 2026
Working Drawings Jul 2026 3 Oct 2026
Approvals Oct 2026 2 Dec 2026
Bid and Award Dec 2026 4 Apr 2027
Construction Apr 2027 16 Aug 2028
Campus Move-in Aug 2028 1 Sep 2028
CRC South Campus Natural Gas Line
PM: Cox Architect: tBP Contractor: PRO BUILDERS
Scope: New natural gas service to College Center to feed Cafeteria.
Weekly Update: Contractor has completed work.
Tenative Schedule Start Months Finish % Complete
Prelim Plans Apr 2024 2 Jun 2024 100
Approvals Jun 2024 1 Jul 2024 100
Working Drawings Jul 2024 1 Aug 2024 100
Approvals Aug 2024 2 Oct 2024 100
Bid and Award Oct 2024 7 May 2025 100
Construction May 2025 3 Aug 2025 100
Campus Move-in Aug 2025 0 Aug 2025 100
DOC District Wide Infrastructure Master Planning
PM: Meyer Architect: Contractor:
Scope: District Wide Infrastructure Master Planning
Weekly Update:
Tenative Schedule Start Months Finish % Complete
Prelim Plans Jan 2014 6 Jun 2014 0%
Approvals Jun 2014 4 Oct 2014 0%
Working Drawings Oct 2014 7 May 2015 0%
Approvals May 2015 7 Dec 2015 0%
Bid and Award Dec 2015 3 Mar 2016 0%
Construction Mar 2016 22 Dec 2017 0%
Campus Move-in Dec 2017 4 Apr 2018 0%
DOC DO Bond Admin
PM: Meyer Architect: Contractor:
Scope: Project to capture expenses associated with managing the Bond Program
Weekly Update:
Tenative Schedule Start Months Finish % Complete
Prelim Plans Jul 2022 2 Sep 2022 0%
Approvals Sep 2022 0 Sep 2022 0%
Working Drawings Sep 2022 4 Jan 2023 0%
Approvals Jan 2023 3 Apr 2023 0%
Bid and Award Apr 2023 4 Aug 2023 0%
Construction Aug 2023 6 Feb 2024 0%
Campus Move-in Feb 2024 1 Mar 2024 0%
DOC FM Electric Vehicle Charging Stations
PM: Uhlmeyer Architect: TEE Contractor:
Scope: Installation of EV Charging Stations at FM to comply with state required mandate for zero emission vehicle fleet by 2030.
Weekly Update: Issue with CT / Meter - PER SMUD lower rail "lugs to be flipped 180degrees should fix the issue. Contractor to schedule Contractor to be completed with "green card" by county 6/6 SMUD CT (meter) to follow
Tenative Schedule Start Months Finish % Complete
Prelim Plans Sep 2023 6 Mar 2024 100%
Approvals Mar 2024 1 Apr 2024 100%
Working Drawings Apr 2024 3 Jul 2024 100%
Approvals Jul 2024 4 Nov 2024 100%
Bid and Award Nov 2024 3 Feb 2025 100%
Construction Feb 2025 5 Jul 2025 95%
Campus Move-in Jul 2025 0 Jul 2025
DOC LRPD Move to FM
PM: Uhlmeyer Architect: HED Contractor: MESA ENERGY SYSTEMS INC
Scope: Relocate LRPD from Ethan Way to Facilities Management, to include emergency generator & UPS backup, HVAC/Electrical/Data upgrades as needed and warehouse revisions necessary to make room for TI.
Weekly Update: Frame, Drywall, rough plumbing complete - electrical ongoing- interior/exterior painting (prime & first coat) structured cabling to start 10/2/2025. Still do not have auto gate approval. Precon meeting 6/2 Conditional NTP issued for 6/2 - Unconditional NTP released 6/4
Tenative Schedule Start Months Finish % Complete
Prelim Plans Jan 2023 11 Dec 2023 100%
Approvals Dec 2023 2 Feb 2024 100%
Working Drawings Feb 2024 3 May 2024 100%
Approvals May 2024 9 Feb 2025 100%
Bid and Award Feb 2025 4 Jun 2025 100%
Construction Jun 2025 8 Feb 2026 56%
Campus Move-in Feb 2026 1 Mar 2026
FLC 2025 EDC Bldg A Foam & Coat Roofing
PM: Blake Architect: Contractor: PACIFIC POLYMERS INC
Scope: SMSR project to foam and coat Building A at El Dorado Hills Center
Weekly Update: 2025.09.25- 1) Project is Substantially complete, Punch Walk Scheduled for 10/8/25, Final Change Order is in route for execution by Pacific Polymers, total Allowance cost to be returned to LRCCD.
Tenative Schedule Start Months Finish % Complete
Prelim Plans Apr 2025 1 May 2025
Approvals May 2025 1 Jun 2025
Working Drawings Jun 2025 1 Jul 2025
Approvals Jul 2025 1 Aug 2025
Bid and Award Aug 2025 1 Sep 2025
Construction Sep 2025 1 Oct 2025
Campus Move-in Oct 2025 1 Nov 2025
FLC Central Plant Upgrades
PM: Duchaine Architect: Interface Contractor: RODAN BUILDERS, INC
Scope: Upgrade of Central Plant heating and cooling quality and capacity to accommodate near and long term building needs.
Weekly Update: Project is approximately 85% complete. Heating side boilers and pump installation complete. The cooling towers replacement VSD's scheduled for mid December arrival. Additional noise mitigation measures have been installed on temporary chillers. Functional testing is pending.
Tenative Schedule Start Months Finish % Complete
Prelim Plans Nov 2020 9 Aug 2021 100
Approvals Aug 2021 7 Mar 2022 100
Working Drawings Mar 2022 7 Oct 2022 100
Approvals Oct 2022 9 Jul 2023 100
Bid and Award Jul 2023 8 Mar 2024 100
Construction Mar 2024 19 Oct 2025 85
Campus Move-in Oct 2025 1 Nov 2025 85
CUP Aerial View
Cooling Tower 1-4 Yard
FLC EDC Teaching Vineyard
PM: Mirmiran Architect: MSLA (Michael Shular) Contractor: PRO BUILDERS
Scope: Project will create a small teaching vineyard for viticulture program: to include concrete pad for outdoor teaching, ADA pathway and retaining walls if necessary.
Weekly Update: Construction completed. Closeout documents in progress.
Tenative Schedule Start Months Finish % Complete
Prelim Plans Sep 2023 3 Dec 2023 100%
Approvals Dec 2023 1 Jan 2024 100%
Working Drawings Jan 2024 3 Apr 2024 100%
Approvals Apr 2024 7 Nov 2024 100%
Bid and Award Nov 2024 5 Apr 2025 100%
Construction Apr 2025 5 Sep 2025 100%
Campus Move-in Sep 2025 0 Sep 2025 100%
FLC Rancho Center Health Hub Project
PM: Duchaine Architect: Lionakis Contractor: NYECON INC
Scope: Project will remodel a portion of the Rancho Cordova Ctr Phase 1 building for new Health programs - CN, EMT & Radiology Tech.
Weekly Update: Bid date 5/15/2025.
Tenative Schedule Start Months Finish % Complete
Prelim Plans Jul 2024 1 Aug 2024
Approvals Aug 2024 1 Sep 2024
Working Drawings Sep 2024 2 Nov 2024
Approvals Nov 2024 3 Feb 2025
Bid and Award Feb 2025 5 Jul 2025
Construction Jul 2025 3 Oct 2025
Campus Move-in Oct 2025 1 Nov 2025
FLC Rancho Cordova Center Phase 2
PM: Uhlmeyer Architect: Studio W Architecture Contractor:
Scope: The Project builds a new 14,200 assignable square feet (asf) (21,000 gross square feet) instructional facility adjacent to the existing Folsom Lake College Rancho Cordova Center building. The new building will provide space for instruction in general education and biology and provides ADA access compliance and adequate HVAC, power, technology and lighting systems to support these instructional programs. This includes 3,200 asf of lecture space, 9,500 asf of lab space and 600 asf of office/admin and 900 asf of miscellaneous support space.
Weekly Update: Project has been split into two parts - Parking Lot and Building.
Tenative Schedule Start Months Finish % Complete
Prelim Plans Sep 2020 7 Apr 2021 100%
Approvals Apr 2021 4 Aug 2021 100%
Working Drawings Aug 2021 5 Jan 2022 100%
Approvals Jan 2022 8 Sep 2022 100%
Bid and Award Sep 2022 9 Jun 2023 0%
Construction Jun 2023 5 Nov 2023 0
Campus Move-in Nov 2023 2 Jan 2024 0
Courtyard view from high up
Interior First Floor Lobby from Entrance
FLC Rancho Cordova Phase 2 Parking
PM: Uhlmeyer Architect: Studio W Contractor: CREEKSIDE COMMERCIAL BUILDERS INC
Scope: Construction of additional off site parking to support Rancho Cordova Center. Project will expand parking lot across Paseo Drive, a short walk to the Rancho Cordova Center, and provide approximately 66 additional stalls.
Weekly Update: Project is complete. Notice of Completion has been requested. Working on final change order for contractor.
Tenative Schedule Start Months Finish % Complete
Prelim Plans Jul 2022 1 Aug 2022 100
Approvals Aug 2022 3 Nov 2022 100
Working Drawings Nov 2022 3 Feb 2023 100
Approvals Feb 2023 3 May 2023 100
Bid and Award May 2023 2 Jul 2023 100
Construction Jul 2023 18 Jan 2025 100
Campus Move-in Jan 2025 0 Jan 2025 100
Parking Lot Expansion Paving Complete
New Electrical Gear
FLC Science 2.1
PM: SixthDimension Architect: HMC Contractor: JOHN F OTTO, INC
Scope: This Project builds a new 48,900 assignable square feet (asf) (75,000 gross square feet) science building. The new building will be used for instruction in general education, biology and chemistry and provides ADA access compliance and adequate HVAC, power, technology and lighting systems to support these instructional programs. This includes 8,800 asf of lecture space, 28,900 asf of lab space and 11,200 asf of office/admin support. The project will also construct 138 new parking spaces, including 8 new electrical vehicle charging stations (EVCS) in existing parking in front of the Harris Center.
Weekly Update: Project is 99% complete, open items include punch list, functional testing of systems (Estimated Completion 9/30/2025) and exterior vertical shades. Landscaping is in the maintenance period. Training and closeout documentation (as-builts, warranties, etc.) are in progress. Otto (General Contractor) remains on site to complete open items around the class schedule. Building Envelope testing is tentatively scheduled for 9/19/2025.
Tenative Schedule Start Months Finish % Complete
Prelim Plans Dec 2019 9 Sep 2020 100
Approvals Sep 2020 2 Nov 2020 100
Working Drawings Nov 2020 7 Jun 2021 100
Approvals Jun 2021 13 Jul 2022 100
Bid and Award Jul 2022 4 Nov 2022 100
Construction Nov 2022 33 Aug 2025 99
Campus Move-in Aug 2025 4 Dec 2025 50
Chemistry Collaborative Space
Main Entrance
SCC 2024 Quad Lighting
PM: Blake Architect: Engineering Enterprise Contractor:
Scope: Replace exterior pole lights around quad and campus with new energy efficient LED pole lights.
Weekly Update: 2025.09.30- 1) Design Phase. 2) Team has agreed to move forward with 3000 kelvin colors at Quad.
Tenative Schedule Start Months Finish % Complete
Prelim Plans Dec 2024 4 Apr 2025
Approvals Apr 2025 1 May 2025
Working Drawings May 2025 2 Jul 2025
Approvals Jul 2025 1 Aug 2025
Bid and Award Aug 2025 3 Nov 2025
Construction Nov 2025 4 Mar 2026
Campus Move-in Mar 2026 1 Apr 2026
SCC Astroturf Synthetic Softball Field
PM: Uhlmeyer Architect: LPA Contractor: PROGRASS WEST INC
Scope: In an effort to address sustainability goals and improve facilities for Los Rios students this project will replace the exis t ing natural grass softball fields at American River College, Sacramento City College and Folsom Lake College with a new synthetic fields. The planned improvements include Removal of the existing natural grass field, New synthetic turf field with associated subdrainage, ADA path of travel improvements as required for the field and Minor ADA improvements to the existing restroom facilities.
Weekly Update: Field complete - ADA Restroom work at Union Stadium start January 6, 2025 with expected completion January 26, 2025
Tenative Schedule Start Months Finish % Complete
Prelim Plans May 2022 4 Sep 2022 100%
Approvals Sep 2022 1 Oct 2022 100%
Working Drawings Oct 2022 2 Dec 2022 100%
Approvals Dec 2022 3 Mar 2023 100%
Bid and Award Mar 2023 3 Jun 2023 100%
Construction Jun 2023 6 Dec 2023 100%
Campus Move-in Dec 2023 0 Dec 2023 100%
SCC CDC Acoustical Improvements
PM: Mirmiran Architect: HMC Contractor: PRO-EX CONSTRUCTION
Scope:
Weekly Update: Construction completed. Closeout documents in progress.
Tenative Schedule Start Months Finish % Complete
Prelim Plans Jul 2024 0 Jul 2024 100%
Approvals Jul 2024 1 Aug 2024 100%
Working Drawings Aug 2024 1 Sep 2024 100%
Approvals Sep 2024 3 Dec 2024 100%
Bid and Award Dec 2024 5 May 2025 100%
Construction May 2025 2 Jul 2025 100%
Campus Move-in Jul 2025 1 Aug 2025 100%
SCC Health and Wellness Center Expansion
PM: Blake Architect: Lionakis Contractor: Z SQUARED CONSTRUCTION
Scope: Feasibility study to determine best option for expanding Health Services for Students. Project is in response to a two year grant for $350,000 to establish a mental health program on each campus.
Weekly Update: 2025.09.30- 1) Received O&M and Warranties from LIONAKIS on 8/19/25. 2) Received DSA Closeout Certification Check on 8/19/25. 3)Received DSA Certification Letter on 8/22/25. Handing off Warranty Binders to FM.
Tenative Schedule Start Months Finish % Complete
Prelim Plans Jan 2021 5 Jun 2021 100
Approvals Jun 2021 7 Jan 2022 100
Working Drawings Jan 2022 9 Oct 2022 100
Approvals Oct 2022 12 Oct 2023 100
Bid and Award Oct 2023 6 Apr 2024 100
Construction Apr 2024 7 Nov 2024 2
Campus Move-in Nov 2024 1 Dec 2024
SCC Natural Sciences Modernization
PM: Mirmiran Architect: HGA Contractor: BROWARD BUILDERS, INC
Scope: This Project builds a new science building to replace the existing Natural Sciences building.  The new building will be used for instruction in general education, biology and chemistry and provides ADA access compliance and adequate HVAC, power, technology and lighting systems to support these instructional programs.  The total area includes lecture space, lab space and office/admin support.  Upon completion and tenant occupancy of the new science building, the Project will also demolish the existing and adjacent Natural Sciences building. At completion of demo the project will construct a Gazebo at location of old Natural Sciences Building.
Weekly Update: DSA issued Certificate of Occupancy. Wood Veneer installation completed. Closeout documents in progress.
Tenative Schedule Start Months Finish % Complete
Prelim Plans Jun 2018 2 Aug 2018 100%
Approvals Aug 2018 1 Sep 2018 100%
Working Drawings Sep 2018 11 Aug 2019 100%
Approvals Aug 2019 7 Mar 2020 100%
Bid and Award Mar 2020 9 Dec 2020 100%
Construction Dec 2020 32 Aug 2023 100%
Campus Move-in Aug 2023 1 Sep 2023 100%
Courtyard West and North Elevation
SCC PAC Main Speaker Replacement
PM: Blake Architect: Moniz Architecture Contractor:
Scope: Replace main speakers in PAC that have failed. Speakers hang from above and project will require engineering and DSA approval.
Weekly Update: 2025.09.30- 1) Conducted project design start up meeting on Friday 1/31/25 at the site at 11:30 a.m. 2) Site informed team that the best window for construction would be June 2026 through July 2026, adjusted Bid Schedule accordingly to meet their request. 3) Construction Drawings close to being completed, DSA Pre-App Meeting Scheduled for 10/22/25.
Tenative Schedule Start Months Finish % Complete
Prelim Plans Feb 2025 6 Aug 2025
Approvals Aug 2025 3 Nov 2025
Working Drawings Nov 2025 2 Jan 2026
Approvals Jan 2026 2 Mar 2026
Bid and Award Mar 2026 3 Jun 2026
Construction Jun 2026 2 Aug 2026
Campus Move-in Aug 2026 1 Sep 2026
SCC Sand Volleyball
PM: Meyer Architect: Contractor:
Scope: Conceptual Design
Weekly Update:
Tenative Schedule Start Months Finish % Complete
Prelim Plans Aug 2025 0 Aug 2025
Approvals Aug 2025 0 Aug 2025
Working Drawings Aug 2025 0 Aug 2025
Approvals Aug 2025 0 Aug 2025
Bid and Award Aug 2025 0 Aug 2025
Construction Aug 2025 0 Aug 2025
Campus Move-in Aug 2025 0 Aug 2025
SCC SCC South Loop Chiller Replacement (SMSR)
PM: Uhlmeyer Architect: Studio W Architecture Contractor: BP INTERIORS INC
Scope: The SCC South Chiller Replacement project will Demo / remove existing “end of life” (EOL) chiller and associated chilled water piping & existing (refrigerant) evacuation/alarm system, install a new Chiller in its place as well as replace exiting pumps, VFD's and existing Chilled Water Piping/Valves as required • Replace Honeywell Controls System • Replace existing (refrigerant) evacuation/alarm system
Weekly Update: Outstanding issue - Honeywell to provide corrected As-builts
Tenative Schedule Start Months Finish % Complete
Prelim Plans Nov 2022 2 Jan 2023 100%
Approvals Jan 2023 0 Jan 2023 SD 100%
Working Drawings Jan 2023 4 May 2023 100%
Approvals May 2023 4 Sep 2023 100%
Bid and Award Sep 2023 3 Dec 2023 100%
Construction Dec 2023 4 Apr 2024 99%
Campus Move-in Apr 2024 0 Apr 2024
SCC Security Improvement Project - Phase 1 Hardware/Cylinders/Keys
PM: Meyer Architect: Meyer Contractor: BOBO CONSTRUCTION, INC.
Scope: This project has responsibility to provide and install physical door hardware both electrified and non-electrified campus wide. This project will also install owner provided cylinders
Weekly Update: 2023-1-5: Rec'd Midstate PO on 1/4, will coordinate remaining install with Campus. 2022-12-13: Submitted on PO for Midstates and will be completing final buildings in early 2023. 2022-11-16: Working on getting a new PO for Midstate to complete the remaining work in Jan. 2022-8-25: Have substantially completed installation of bypass cores in most buildings, only Lusk, N. Gym Cafeteria and miscellaneous locations remain.
Tenative Schedule Start Months Finish % Complete
Prelim Plans May 2018 3 Aug 2018 100
Approvals Aug 2018 1 Sep 2018 100
Working Drawings Sep 2018 2 Nov 2018 100
Approvals Nov 2018 1 Dec 2018 100
Bid and Award Dec 2018 3 Mar 2019 100
Construction Mar 2019 34 Jan 2022 100
Campus Move-in Jan 2022 1 Feb 2022 100
Hardware awaiting key cylinder install
Building keybox
SCC Swing Space Portable Removal
PM: Blake Architect: Contractor: SIERRA EXCAVATING LLC
Scope: This project will remove all remaining swing space portable buildings on Campus with the exception of one that will house bathrooms and provide storage space for Campus.
Weekly Update: 2025.09.30- 1) WCE provided preliminary drawings, site is reviewing drawings. 2) Site has approved the Option 2 Drawings where traffic can exit onto 12th Avenue and West Parking Lot. 3) Design meeting with SLC North was scheduled on 9/22/25 to discuss Solar Lights at the Parking Lot. 4) Jered Stumpf provided lighting photos at night of parking lot, the wall pack lights at the back side of Lusk and the existing City Street Light are all functional, looks like we will only be required to provide Solar Lights at the planter on the back side of Lusk, SLC North is working on photo metrics with this considered.
Tenative Schedule Start Months Finish % Complete
Prelim Plans Oct 2024 0 Oct 2024 100
Approvals Oct 2024 0 Oct 2024 100
Working Drawings Oct 2024 0 Oct 2024 100
Approvals Oct 2024 3 Jan 2025 100
Bid and Award Jan 2025 2 Mar 2025 100
Construction Mar 2025 7 Oct 2025 50
Campus Move-in Oct 2025 1 Nov 2025
Southeast View
Northeast View